loader

الميزانية

78,000,000

مساحة المشروع

16500

الدور

المكتب الفني للمقاول الرئيسي

العميل

جامعة الأمير سلطان

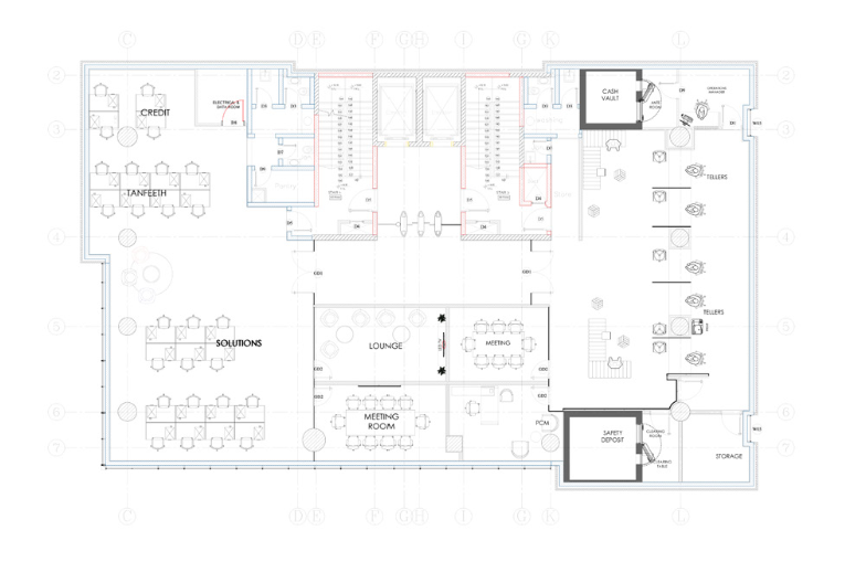
بنك الراجحي

ﻳﺘﻀﻤﻦ اﻟﻤﴩوع ﺗﺼﻤﻴﻢ اﻟﻤﺨﻄﻄﺎت اﻻﻧﺸﺎﺋﻴﺔ و اﻟﺘﺼﻤﻴﻢ اﻟﺪاﺧﲇ و ﺟﻤﻴﻊ ﻣﺨﻄﻄﺎت اﻟﻤﻴﻜﺎﻧﻴﻚ و اﻟﻜﻬﺮﺑﺎء ﺣﺴﺐ اﻟﻤﻮاﺻﻔﺎت و اﻟﻤﺘﻄﻠﺒﺎت ﺣﻴﺚ ﺗﻢ اﻋﺎدة ﺗﺼﻤﻴﻢ اﻟﻮاﺟﻬﺎت ﺑﺎﻟﻜﺎﻣﻞ ﺑﺎﻹﺿﺎﻓﺔ إﱃ اﻟﺪﻋﻢ اﻟﻔﲏ

الخدمات المقدمة

  • مقترحات التصميم
  • المخططات التنفيذية
  • مخططات تنفيذية نهائية
  • حصر الكميات